 |
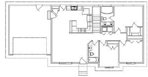
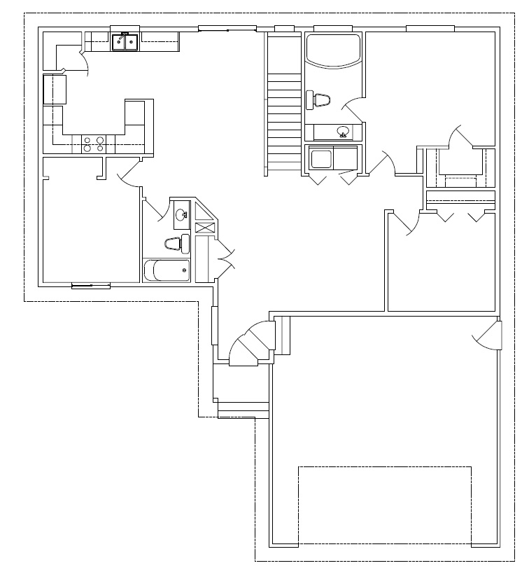
2482 Square feet

This wonderful 3 bedroom 2 bath home features a wonderful master bedroom, walk in
closet, rounded master tub, a very large 2 car garage, upgraded trim, exsquisit cabinetry, full unfinshed basement, and much much more.
This home with the features listed is priced at $145,000. We also allow sweat equity which could reduce the sale price
even further
|
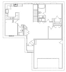
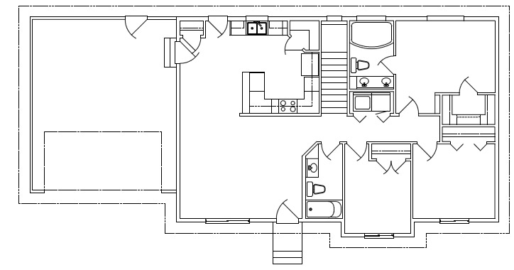
2852 Square feet

This wonderful 3 bedroom 2 bath home features a wonderful master bedroom, walk in
closet, pantry, rounded master tub, main floor laundry, a very large 2 car garage, upgraded trim, large kitchen, exsquisit cabinetry, full unfinshed basement, and much much more.
This home with the features listed is priced at $170,000. We also allow sweat equity which could reduce the sale price
even further! Check out our Custom Home building page for more options
|
We have many other Houseplans to choose from, with hundreds of options.
You can also bring a houseplan of your own and we will give you a bid in less than 48 hours.
Call or E-mail us know to setup an apointment.
|
|